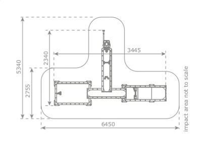
GIOCO ACQUA APACHE - gioco d'acqua statico / E0800 / Prodotto da azienda certificata ISO 9001, ISO 14001, PEFC e FSC. Realizzato in acciaio zincato e verniciato. Tutta la bulloneria in acciaio inox.